$888,888
1,814
SQ FT
$490
SQ/FT
2101 Portside Ct
@ Spinnaker - Delta Waterfront Access, Discovery Bay
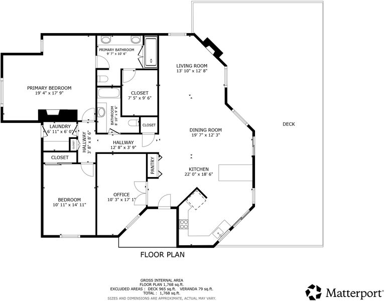
- 3 Bed
- 2 Bath
- 2 Park
- 1,814 sqft
- Discovery Bay
-
-
Sat Feb 21, 1:00 pm - 4:30 pm
Exceptional price on this especially exceptional move-in ready modernized open floor plan Rancher on a premium corner lot on deep water with tranquil views from upgraded kitchen, living area with fireplace, dining area as well as from composite deck plumbed for natural gas bbq, and boat dock with new gangway. On the quiet side are 3 bedrooms, 2 remodeled baths, one in suite with 2nd fireplace and cozy bedroom retreat. Nothing left to do but move-in!
OPEN HOUSE: Sat. 2/21 1pm-4:30pm ~Exceptional price on this especially exceptional move-in ready modernized open floor plan Rancher on a premium corner lot on deep water with tranquil views from upgraded kitchen, living area with fireplace, dining area as well as from composite deck plumbed for natural gas bbq, and boat dock with new gangway. On the quiet side are 3 bedrooms, 2 remodeled baths, one in suite with 2nd fireplace and cozy bedroom retreat. Although solar powered, this home’s living areas are so bright, you are going to need shades with or without the led lighting. With the nearly maintenance-free landscaping on drip system, you will have plenty of time to enjoy endless water adventures, as well as numerous activities at the nearby community center, dog park, & pickleball courts. And don’t forget $1 Taco Tuesday at the nearby Mexican Taqueria. Finally, the landlubbers will love the very-accessible, extra-long RV access so they Can! play snowbirds for the winter sports season before the snowmelt flows down the 1200+ miles of delta waterways on its way to your dream backyard. Nothing left to do but unpack and live your best life ~~~ 3D Virtual Tour~ https://my.matterport.com/show/?m=Zn6GFfM4ZFt.
- Current Status
- Active
- Original Price
- $888,888
- List Price
- $888,888
- On Market Date
- Jan 20, 2026
- Property Type
- Detached
- D/N/S
- Delta Waterfront Access
- Zip Code
- 94505
- MLS ID
- 41121416
- APN
- 0081300485
- Year Built
- 1985
- Stories in Building
- 1
- Possession
- Negotiable
- Data Source
- MAXEBRDI
- Origin MLS System
- BAY EAST
All God's Children Christian School
Private PK-5 Coed
Students: 142 Distance: 0.5mi
Discovery Bay Elementary School
Public K-5 Elementary, Coed
Students: 418 Distance: 0.6mi
Timber Point Elementary School
Public K-5 Elementary
Students: 488 Distance: 1.2mi
Vista Oaks Charter
Charter K-12
Students: 802 Distance: 2.3mi
Excelsior Middle School
Public 6-8 Middle
Students: 569 Distance: 2.3mi
Old River Elementary
Public K-5
Students: 268 Distance: 2.9mi
- Bed
- 3
- Bath
- 2
- Parking
- 2
- Attached, Side Yard Access, Garage Door Opener
- SQ FT
- 1,814
- SQ FT Source
- Public Records
- Lot SQ FT
- 10,010.0
- Lot Acres
- 0.23 Acres
- Pool Info
- None
- Kitchen
- Dishwasher, Gas Range, Microwave, Gas Water Heater, Disposal, Gas Range/Cooktop
- Cooling
- Central Air
- Disclosures
- Nat Hazard Disclosure, Disclosure Package Avail
- Entry Level
- Exterior Details
- Dock, Side Yard
- Flooring
- Linoleum, Carpet
- Foundation
- Fire Place
- Living Room, Master Bedroom
- Heating
- Central
- Laundry
- 220 Volt Outlet, Hookups Only, Laundry Room, Electric
- Main Level
- 3 Bedrooms, 2 Baths, Main Entry
- Views
- Delta, Lake, Water
- Possession
- Negotiable
- Architectural Style
- Ranch
- Construction Status
- Existing
- Additional Miscellaneous Features
- Dock, Side Yard
- Location
- Corner Lot
- Roof
- Composition Shingles
- Water and Sewer
- Public
- Fee
- Unavailable
MLS and other Information regarding properties for sale as shown in Theo have been obtained from various sources such as sellers, public records, agents and other third parties. This information may relate to the condition of the property, permitted or unpermitted uses, zoning, square footage, lot size/acreage or other matters affecting value or desirability. Unless otherwise indicated in writing, neither brokers, agents nor Theo have verified, or will verify, such information. If any such information is important to buyer in determining whether to buy, the price to pay or intended use of the property, buyer is urged to conduct their own investigation with qualified professionals, satisfy themselves with respect to that information, and to rely solely on the results of that investigation.
School data provided by GreatSchools. School service boundaries are intended to be used as reference only. To verify enrollment eligibility for a property, contact the school directly.

